Le projet Vallabrix

Le bail emphytéotique avec la mairie de Vallabrix a été signé en septembre 2025 : 3000 m2 pour 30 ans. De quoi voir venir !
Un lieu qui a assisté à la naissance de l'ARRU, accueilli ses premières fêtes et l'embryon d'un dépôt, que nous avons négligé, pour le redécouvrir enfin, comme la seule ouverture possible sur un territoire où il est difficile de trouver un bâtiment suffisamment vaste pour nous héberger !
Et tout d'abord, un constat : le local de Montaren est trop petit pour laisser la place à toutes nos potentialités et le propriétaire ne souhaite pas renouveler notre bail. Mieux vaut mettre notre loyer dans le remboursement d'une construction plus grande et plus conforme à nos besoins.
Nous voilà partis ainsi dans une nouvelle aventure commune qui, pour qu'elle aboutisse dans les meilleures conditions va nous demander un engagement collectif inédit. La tâche à venir est lourde : dossiers complexes, rendez-vous tout azimut, gestion délicate, calendrier serré. Sans cesser ce qui fait l'essence même de l'ARRU, sensibilisation, collecte, valorisation et redistribution en résonance avec une population de plus en plus attentive à notre engagement social et solidaire.
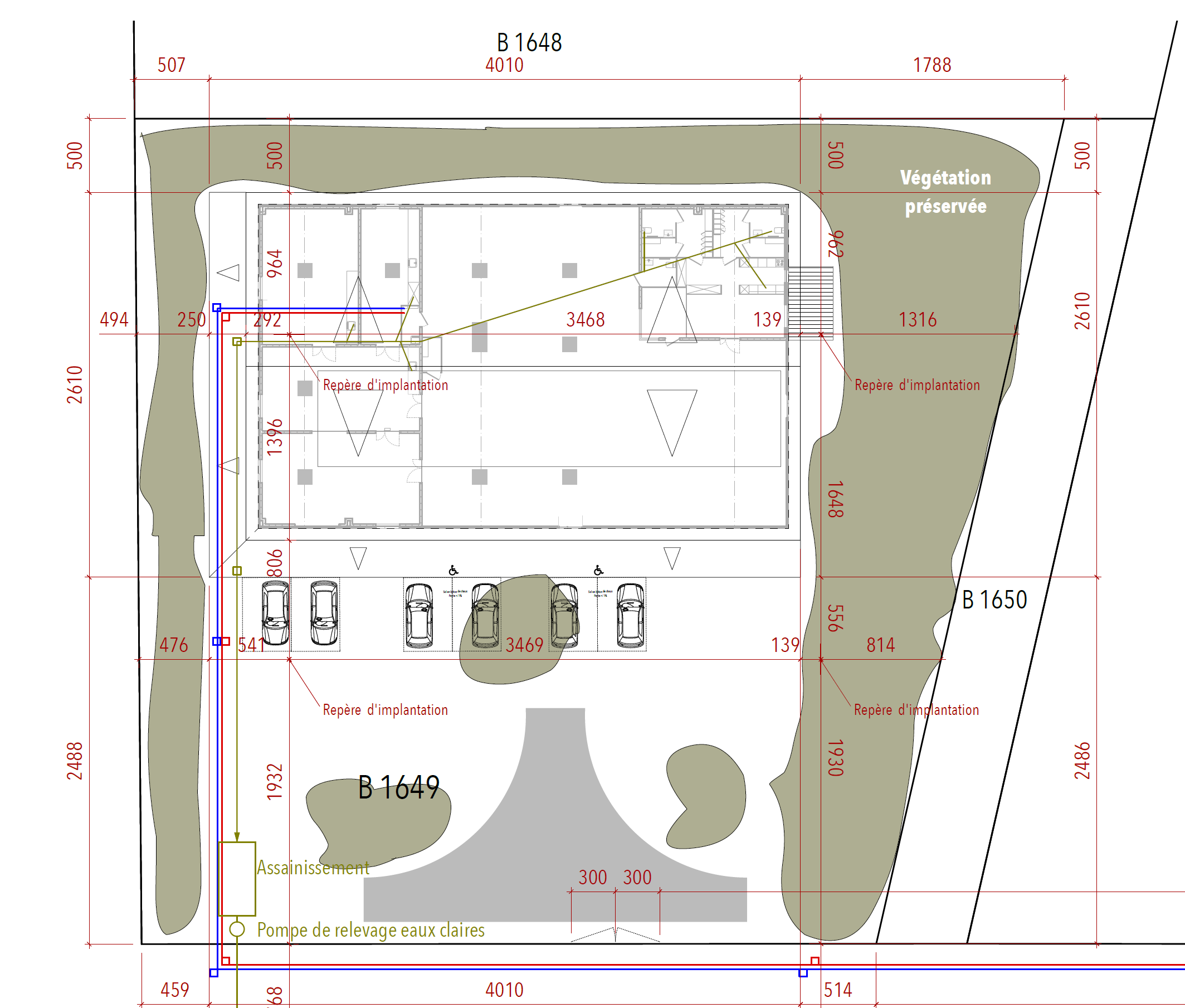
Le projet est de construire une charpente couverte et fermée de près de 1000 m2 qui permettra de doubler notre surface de vente, dans des conditions d'accueil plus respectueuses des usagers. Les plans existent, et le budget est précis. L'avenir nous dira si le terrain de Vallabrix verra naître cette belle ressourcerie dont l'Uzège a tant besoin.
Une page se tourne, et c'est une page blanche que nous sommes, toutes et tous, invités à remplir !
Et tout d'abord, un constat : le local de Montaren est trop petit pour laisser la place à toutes nos potentialités et le propriétaire ne souhaite pas renouveler notre bail. Mieux vaut mettre notre loyer dans le remboursement d'une construction plus grande et plus conforme à nos besoins.
Nous voilà partis ainsi dans une nouvelle aventure commune qui, pour qu'elle aboutisse dans les meilleures conditions va nous demander un engagement collectif inédit. La tâche à venir est lourde : dossiers complexes, rendez-vous tout azimut, gestion délicate, calendrier serré. Sans cesser ce qui fait l'essence même de l'ARRU, sensibilisation, collecte, valorisation et redistribution en résonance avec une population de plus en plus attentive à notre engagement social et solidaire.
Le projet est de construire une charpente couverte et fermée de près de 1000 m2 qui permettra de doubler notre surface de vente, dans des conditions d'accueil plus respectueuses des usagers. Les plans existent, et le budget est précis. L'avenir nous dira si le terrain de Vallabrix verra naître cette belle ressourcerie dont l'Uzège a tant besoin.
Une page se tourne, et c'est une page blanche que nous sommes, toutes et tous, invités à remplir !
Compte rendu de la réunion publique – 21/01/2026 à 19h30
Mercredi 21 janvier s’est tenue, au foyer communal, la première réunion publique de présentation du projet Vallabrix. Celle-ci s’est déroulée en présence de l’architecte Cédric Couissin, d’élus, de bénévoles, d’associations amies et partenaires, ainsi que des habitants de la commune.
La réunion a débuté par un mot de soutien du maire, Bernard Rieu. Charles et Christophe, membres du conseil collégial investis sur le projet, ont ensuite présenté l’association, l’historique du projet, le calendrier prévisionnel ainsi que le budget.
Carla, coordinatrice, a exposé les impacts attendus du projet à l’échelle des cinq prochaines années. Une courte intervention de Citre a suivi, autour de la boucle citoyenne, du projet engagé à Vallabrix sur l’école et du fonctionnement en SCIC.
La parole a ensuite été donnée à l’architecte, Cédric Couissin, qui a rappelé que ce projet s’inscrit dans une réflexion de près de vingt ans et qu’il mobilise, depuis ses débuts, de nombreuses forces vives (bénévoles et salariés). Il a également souligné les enjeux politiques liés à ce type de démarche et l’importance du rôle des élus dans le montage de projets accueillant du public.
Points clés à retenir
- La volonté de préserver un maximum de végétation et d’intégrer le bâtiment au mieux dans le paysage
- L’exigence de répondre aux besoins de fonctionnement, d’accueil et de sécurité, dans un budget contraint et un calendrier serré
- La nécessité de faire valider le permis de construire dans un premier temps, en respectant l’ensemble des normes et contraintes réglementaires
- La volonté de mobiliser largement autour du projet, tout en respectant le cahier des charges et les responsabilités inhérentes à un bâtiment recevant du public
Questions et pistes de réflexion soulevées
Les questions notées par l’architecte, qui nourriront le travail à venir sous réserve de validation des financements et de l’acceptation du permis de construire, portent notamment sur :
- Les besoins de stockage (vélos, textile)
- La recyclabilité du bâtiment
- L’utilisation de matériaux de réemploi pour la construction
- La gestion de l’eau sur site (récupération en citernes, installation éventuelle de toilettes sèches, etc.)
Nous remercions chaleureusement Messieurs Dautreppe et Rieu pour leur présence, ainsi que la soixantaine de personnes venues assister à cette réunion. Nous espérons pouvoir vous convier prochainement à une nouvelle rencontre, avec le beau temps et, nous l’espérons, de bonnes nouvelles à partager.
Support de la présentation
Plans : implantation et espaces (issus du permis de construire)
Surfaces
Implantation
Insertion
Façade EST
Façade SUD





